zürich
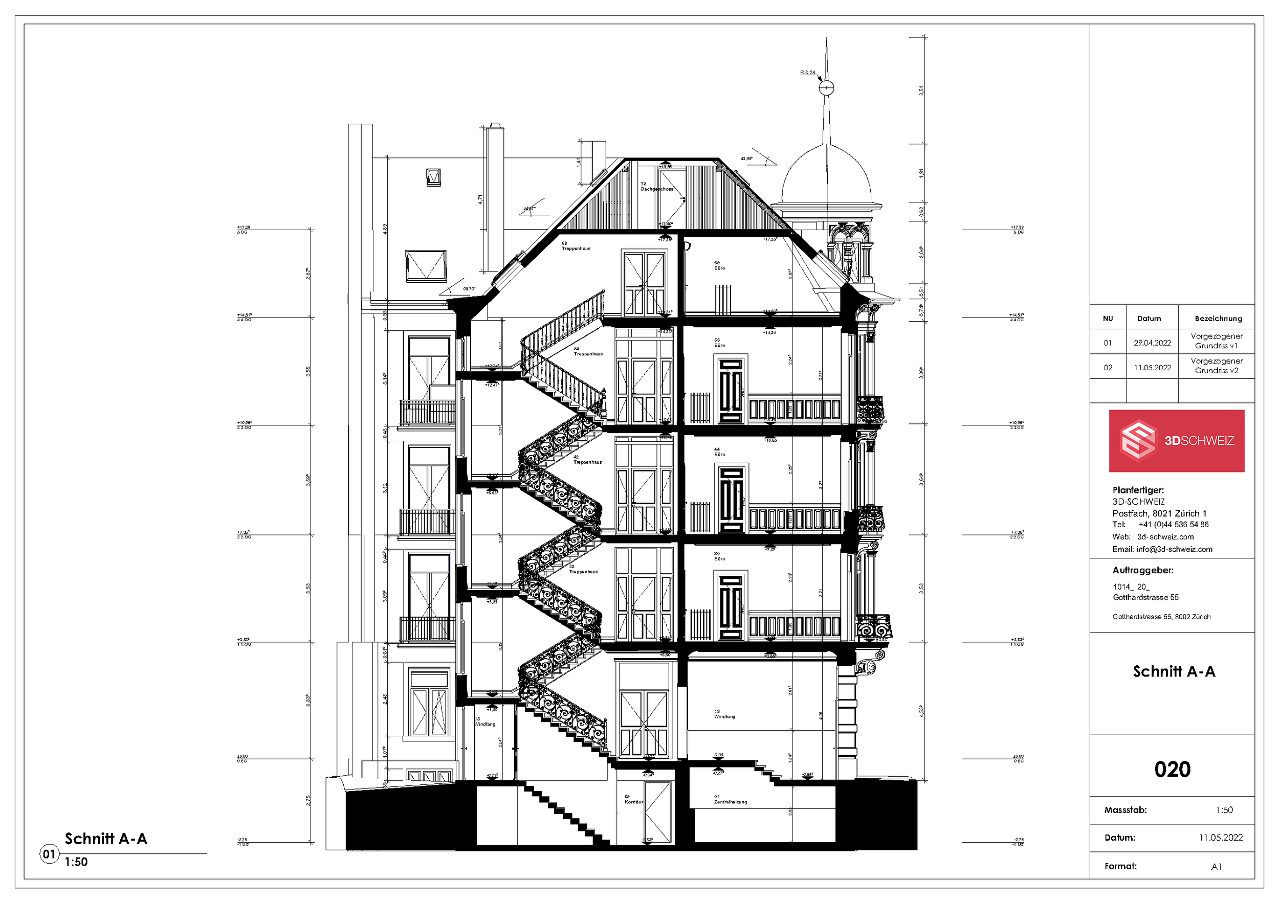
Dieses denkmalgeschützte Gebäude im Herzen von Zürich wurde mittels 3D Laserscanning umfassend vermessen und dokumentiert. Aufgrund des denkmalgeschützten Charakters wurde die Auswertung in ArchiCAD auf Detailstufe LOD350 ausgeführt.
Dieses denkmalgeschützte Gebäude im Herzen von Zürich wurde mittels 3D Laserscanning umfassend vermessen und dokumentiert. Aufgrund des denkmalgeschützten Charakters wurde die Auswertung in ArchiCAD auf Detailstufe LOD350 ausgeführt.