2D plÄNE

UNTER BERÜCKSICHTIGUNG IHRER ANFORDERUNGEN ERARBEITEN WIR AUS DEN GEWONNENEN VERMESSUNGSDATEN BESTANDESPLÄNE IM GEWÜNSCHTEN mAßSTAB und bieten Architekten und Planern damit eine zuverlässige Grundlage für eine sichere und effiziente Planung ihres Bauvorhabens.

Nach Abschluss der Vermessung und der Registrierung der Messdaten nehmen wir Kontakt mit Ihnen auf, um die Anforderungen an die Planauswertung im Detail zu klären. Dabei werden unter anderem allfällige Planvorlagen, Schnittlagen, Bezugspunkte und weitere projektspezifische Parameter gemeinsam definiert. So stellen wir sicher, dass alle relevanten Vorgaben bereits vor Beginn der Planerstellung eindeutig festgelegt sind – für ein Ergebnis, welches bezüglich Aufbau, Darstellung und Struktur den projektspezifischen Vorgaben folgt und sich nahtlos in Ihre bestehende Planstruktur einfügt.
Die finalen Pläne liefern wir Ihnen in den Formaten dwg und pdf.

Ansicht Nordfassade
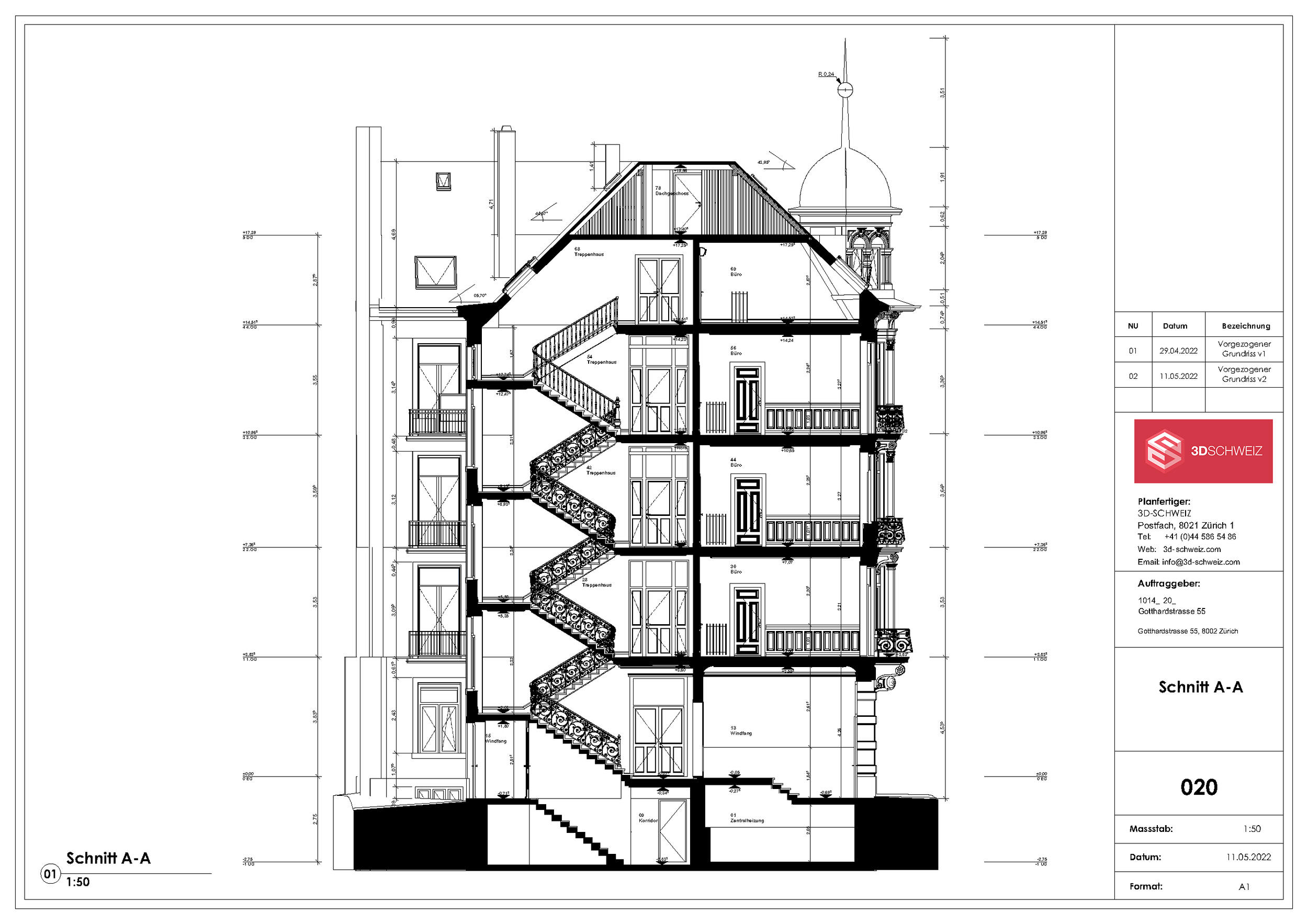
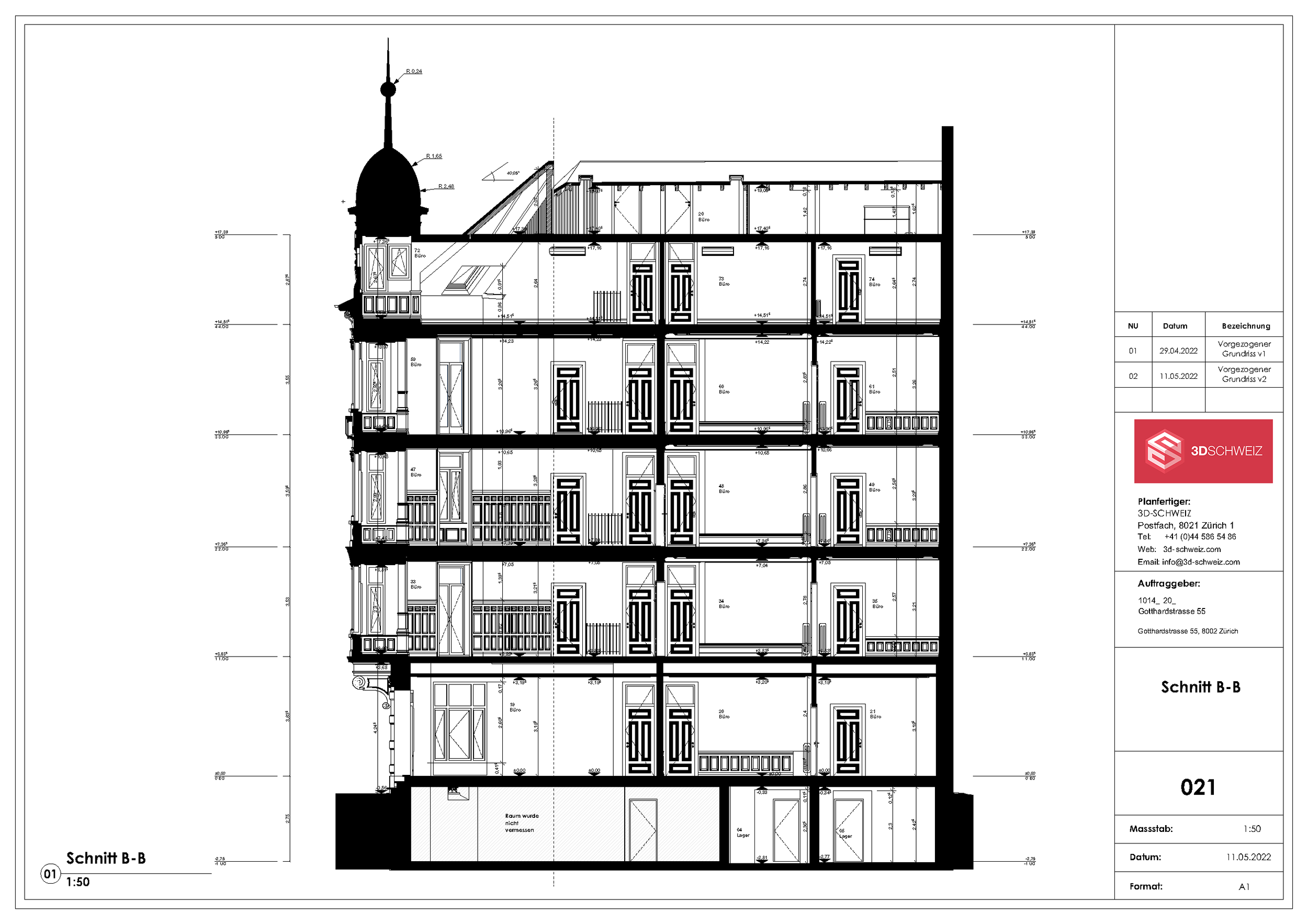
Schnitt
Ansicht Eckfassade
Architektur Schnitt
Ost Fassade
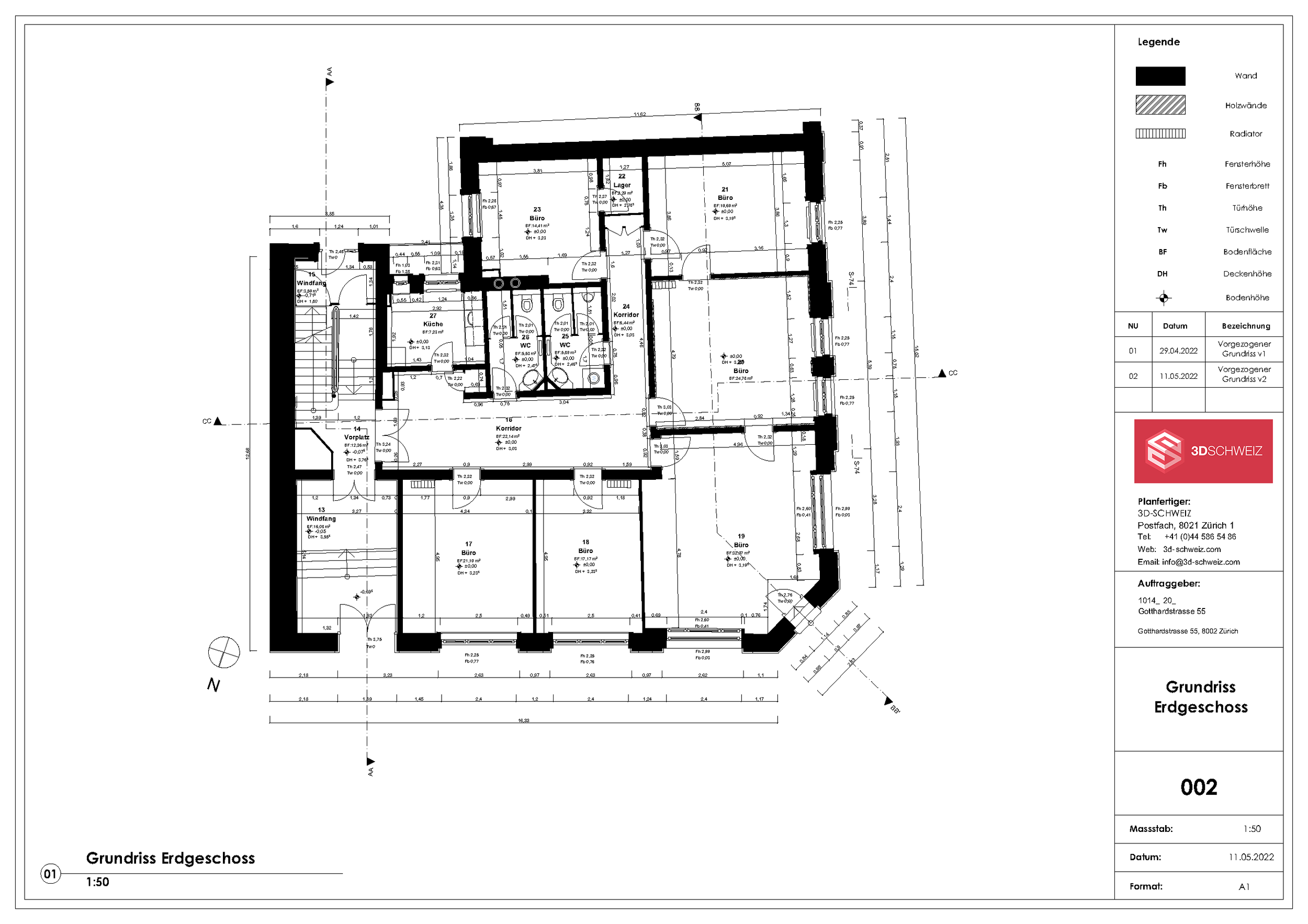
Grundrissplan
Grundriss Erdgeschoss
Grundrissplan
Zurück
Zurück

Gebäudevermessung

Weiter
Weiter

3D Modelle