3d laserscanning in farbe

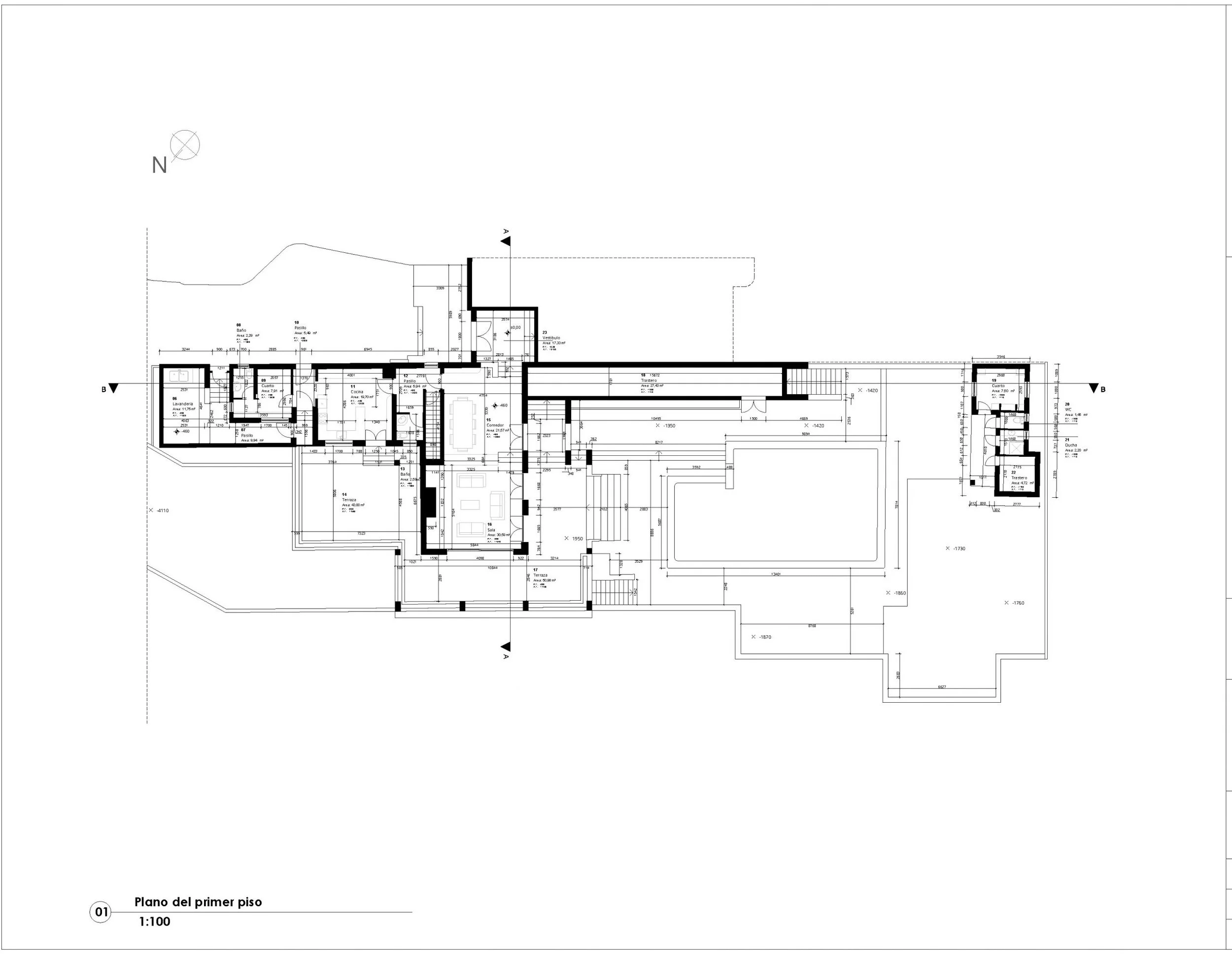
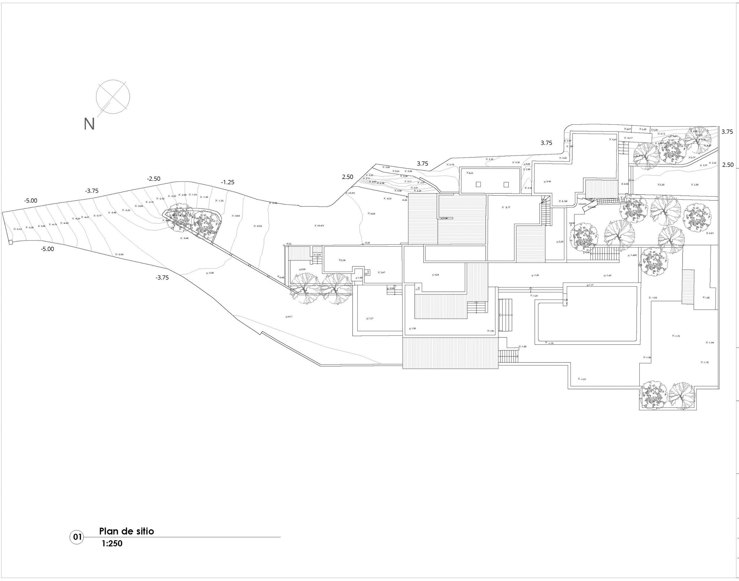
Die Vermessung mittels 3D Laserscanning ergab bei dieser Finca auf Ibiza zur Freude des Käufers bedeutend grössere Grundflächen als in den Archivplänen ausgewiesen. Die neuerstellten Pläne dienen dem Architekten um dieses Anwesen gemäss den Wünschen des neuen Besitzers auf Basis einer sauberen Plangrundlage umzubauen.

Zurück
Zurück

St. Gallen

Weiter
Weiter

Bern