Escaneo láser 3D
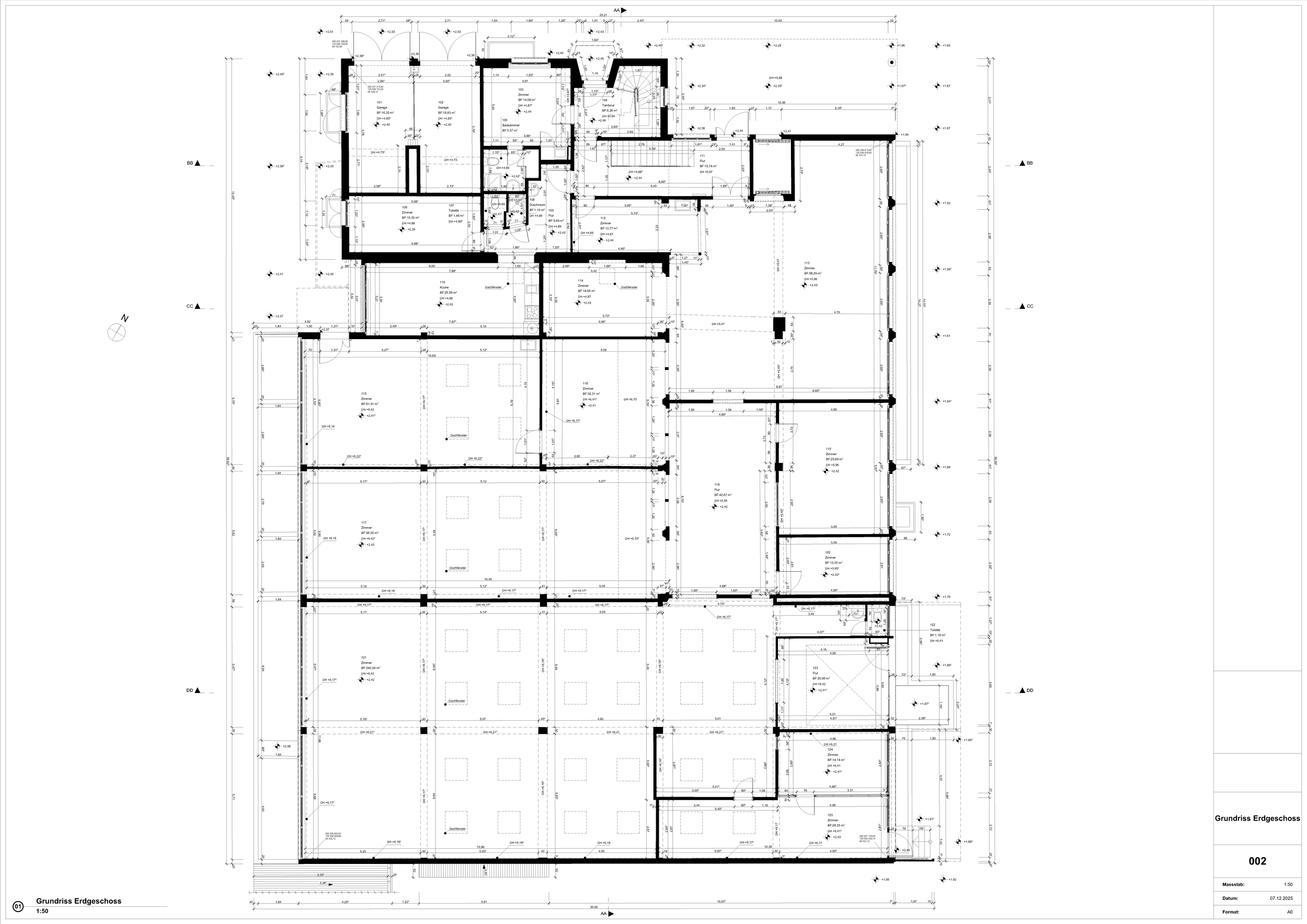
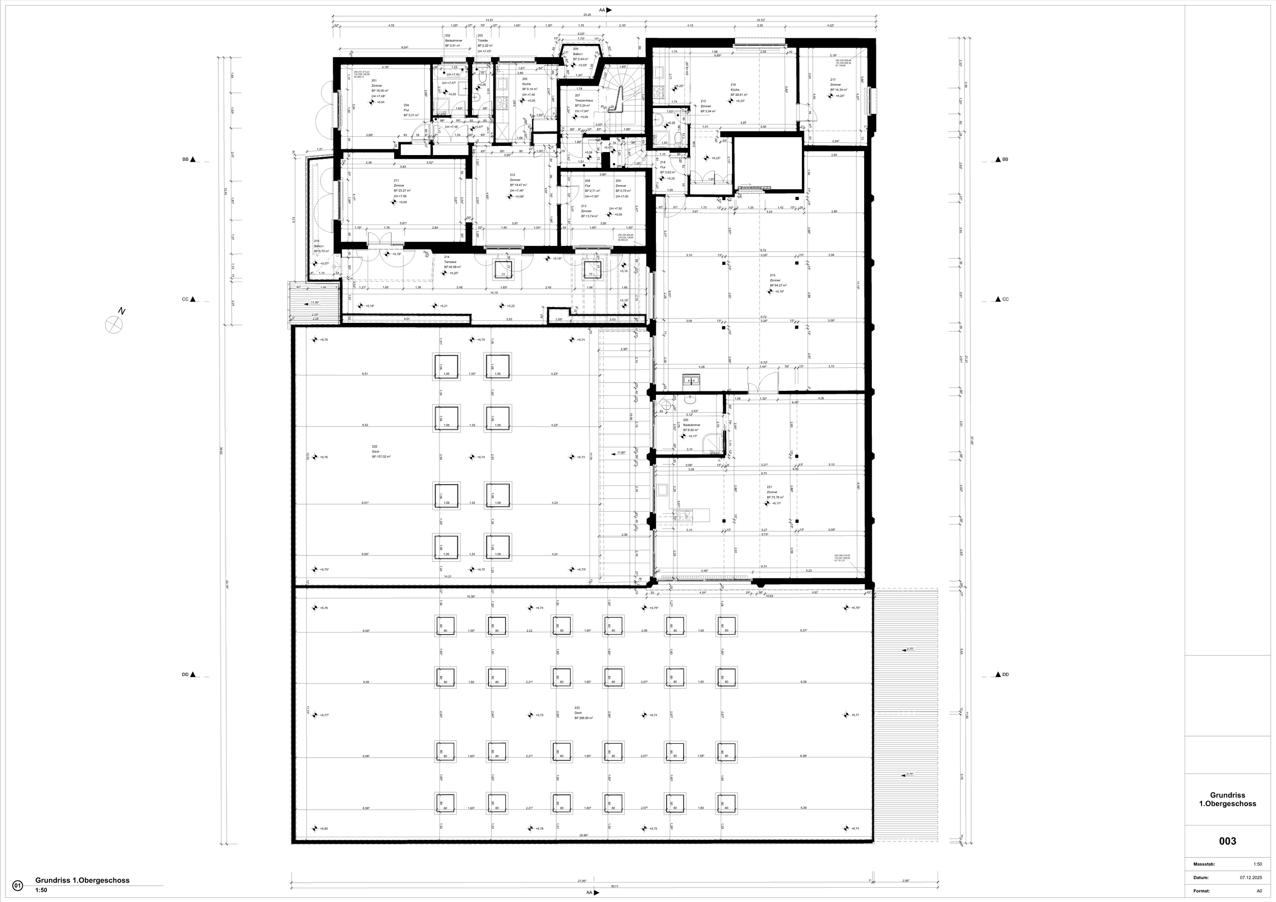
Este inmueble de uso mixto, que alberga un comercio de bebidas y una zona residencial, se midió mediante escaneo láser 3D y, posteriormente, se procesó en ArchiCAD para crear un modelo 3D y los planos 2D correspondientes.
Este inmueble de uso mixto, que alberga un comercio de bebidas y una zona residencial, se midió mediante escaneo láser 3D y, posteriormente, se procesó en ArchiCAD para crear un modelo 3D y los planos 2D correspondientes.